中联重科获得实用新型专利授权:“拔销机构及带双拔销板的拔销装置总成”
作者:小微
发表于:2025年08月01日
浏览量:65381

图片来源于网络,如有侵权,请联系删除
证券之星消息,根据天眼查APP数据显示中联重科(000157)新获得一项实用新型专利授权,专利名为“拔销机构及带双拔销板的拔销装置总成”,专利申请号为CN202422448709.X,授权日为2025年8月1日。
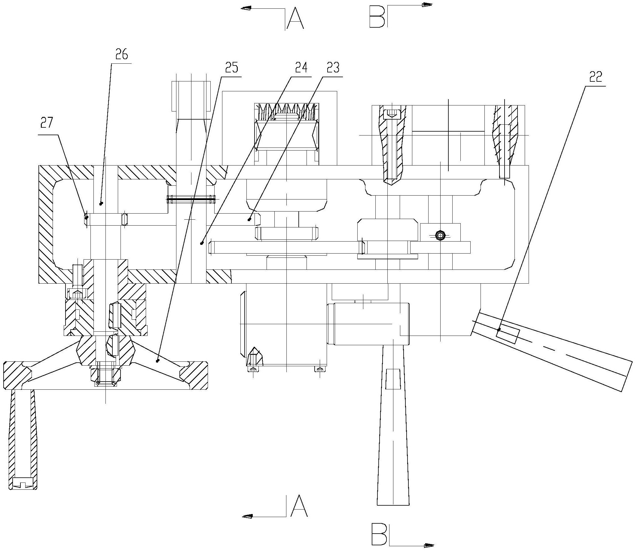
专利摘要:本实用新型属于工程机械技术领域并提供一种拔销机构及带双拔销板的拔销装置总成,拔销机构包括螺纹拉杆、左旋套筒座和右旋套筒座,左旋套筒座和右旋套筒座均包括用于与螺纹拉杆螺纹套接配合的套筒连接部和用于与拔销板限位配合的限位连接部,限位连接部位于套筒连接部的径向侧,其中,左旋套筒座和右旋套筒座的套筒连接部的螺纹方向相反。通过将螺纹拉杆、左旋套筒座的限位连接部、右旋套筒座的限位连接部之间的装配位置设置为轴向错开,能够使螺纹拉杆的装配位置位于拔销板的侧方,从而在两侧的拔销板的间距较小时,也能够实现拔销机构的顺利安装。
今年以来中联重科新获得专利授权269个,较去年同期增加了42.33%。结合公司2024年年报财务数据,2024年公司在研发方面投入了27.69亿元,同比减19.53%。
通过天眼查大数据分析,中联重科股份有限公司共对外投资了105家企业,参与招投标项目8272次;财产线索方面有商标信息1672条,专利信息9102条,著作权信息250条;此外企业还拥有行政许可673个。
数据来源:天眼查APP
以上内容为证券之星据公开信息整理,由AI算法生成(网信算备310104345710301240019号),不构成投资建议。
